A Debrecen István út, Bojta és Széchényi utca közé eső szakaszának keleti oldalán a jellemzően kertesházak sorának ritmusát szolgáltató és kereskedelmi épületek törik meg. A Tócóskerti panelépületek 10 emeletes térfalaira jelentős zöldfelület, aszfaltút és a keleti oldal platánsorral szegélyezett zöldsávon keresztül, szellősen fordulnak ezek az épületek. Jellemző utcaképi jelenség, hogy a lakóépületek előtti „csendes” zöldet időnként a kereskedelem és szolgáltató funkciók előtt parkoló autók halmaza váltja. Jelenleg a telken valaha lakóépületből átalakult kereskedelmi- és szolgáltató épület található.
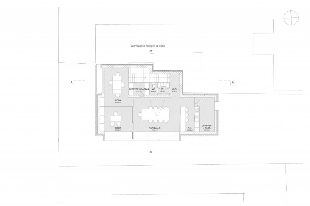
A tervezett épület valójában a jelenlegi működést folytatva, a telken kialakult nem optimális helyzetet felszámolva egy korszerű, minden igényét kielégítő, előremutató fejlesztés. A hátsó telekhatáron lévő műhely és a főépületben lévő funkciók egybemosásával immár 2 szinten működne. Az épület földszintjén történik a kereskedelem, a pulttal és üvegfallal elválasztott kiszolgálás. Itt kerül elhelyezésre a kereskedelmet kiszolgáló raktár és javítóműhelyek, a vizesblokk, valamint a takarítóeszköz tár. Az emeleten a lépcsőről érkezve központi tárgyalóba jutunk, melyből a kereskedelmet kiszolgáló irodák nyílnak. Tolófalakkal a teakonyha elválasztható, vagy elrejthető igény szerint. Ebből a térből nyílik a gépészet illetve a loggia.
Az épület tömege törekszik a formai egyszerűségre a tömeg és térformálás arányokon és összhangon alapuló szabályaira. A földszint és I. emelet épülettömegét lapostető zárja. A kereskedelem mint önmagát hirdetve az utcafrontra fordul, nagy üvegfelületekkel kommunikálva, illetve belátást, rálátást biztosítva. Ugyanígy viselkednek az emeleti irodák, illetve tárgyaló is, noha nem feltétlenül utcafrontra nézve. A homlokzaton megjelenő architektúra a leplezetlen őszinte anyagképzést hirdeti acélgerendák struktúráját kitöltő nyers téglafalat, melyet az üveg könnyít helyenként.
Az épület belső anyaghasználata is hasonló elvet követ. A belső térben megjelenő szerkezetek és berendezések a teljes láthatóság jegyében vannak jelen. Az épület tektonikája teljes mértékében tetten érhető. Látható módon megjelenő trapézlemez födém, acél gerendák, csiszolt beton padlók vagy akár a látszó gépészeti csövek együttélése alapos belsőépítészeti tervezést követelnek, melynek együttese a tervezői szándék szerint egy leplezetlen, vagány enteriőrt alkot.






